In Cities people are constantly on the move and travel far & longer from their comfort spaces. The need to refresh and rejuvenate for having a productive and enjoyable day out is a dream for many. India predominantly has a hot climate with humidity ranging from city to city. The need to relieve and refresh is a very basic physical need in such climates. The current situations in our cities, mainly Mumbai is pathetic from point of view of City experience. As a country, we don’t celebrate the outdoors too much and we have now switched to the Mall culture in hope for solace from the hustle bustle of the City. Our Public Toilets lack the dignity of a function that is so intrinsic to our lives. It is essential that we revisit our Public Toilets and create a different image and identity around them.
The Principles & Program for Public Toilets 2.0
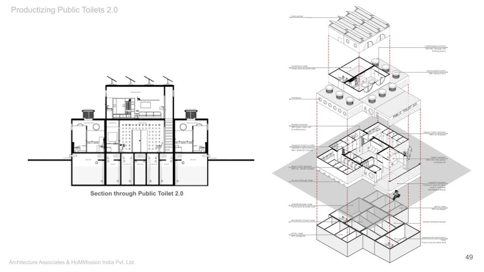
The Design of the Public Toilet is done using modular technique and constructed using 3D Precast / PPVC technology.
























