We participated in a competition in August 2021 which dealt with designing a iconic public structure. This had to be made using TATA Structura’s Steel sections. Our entry proposed at creating an interactive Space and Structure, providing people with a space for their own in the City.
जन मंडप / Peoples Pavillion
The Indian subcontinent is a cradle to one of the longest continuous living civilisations in the world. We have seen various ups and downs in its development throughout its history because of the invasion by foreign civilisations. Fortunately most of them have been absorbed in the culture leading to a tolerant & harmonious diversity in its people. India is the story of a civilisation that stood as one and paved its own path as a unique collective.
As a collective we gained our Independence leading to the creation of a new country and paradigm shift in its Governance. A truly Democratic Nation’s development is dependent on the growth of every individual of the country. Be it Governance, Industries, Businesses, Small Enterprises, Institutions… etc, Each and every Citizens participation is responsible towards the growth of our huge Nation. It is only thanks to the people who are the nuts & bolts of this large machinery that help the positive development of the country. Our Democratic formulation is what gives each of us freedom and opportunity to achieve everything that each one wishes.
Concept
As a tribute to the Constitution of India and the power it vests in its people, The proposal is basically a series of ‘pedestals’, as vantage points for anyone to install oneself and be seen as the unsung hero of India’s progress.
Steel helped bring about the Industrial revolution and it is a representative of a material for the masses. Needless to say, such an Edifice that stands for the Nation’s Democratic framework is made using Steel. The use of Steel in the installation demonstrates the Sculptural elegance of steel in various forms such as Structural Sections, Floor panels, Stairs, Furniture, Railings, Wall Panels, etc.
Design
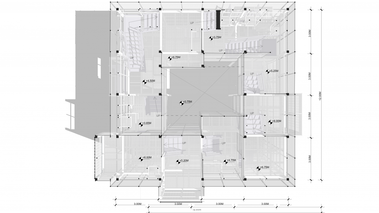
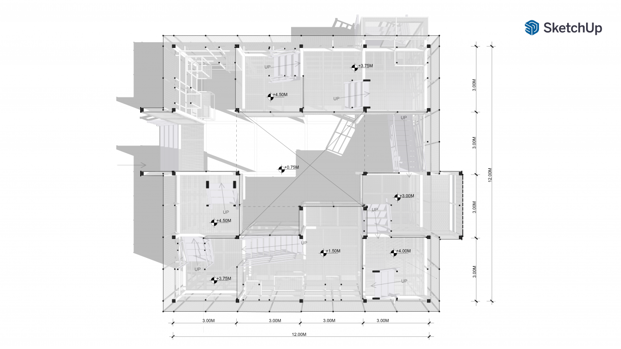
The entire physical parameters (12 x 12x 12m) of the competition is conceived as an architecture of ‘levels’ which can be accessed and occupied by the user. Various apparatus are provided within each space on which the user can walk around and be free to take various poses.
The planning is such that a set of levels are arranged in a helical form that reach the top level platform. These spaces are on the external periphery of the cubical form and on the inside houses an atrium.
The Form of the building is a Cube. The periphery is a continuous gallery and the centre is an Atrium. The exterior and interior surfaces are articulated by balconies which are strategically composed over the installation. The skin of the building is made using expanded steel mesh which gives the building an ethereal quality.
The purpose for the design is to use the installation as a space, to rest & refresh as a relief from the climate & fatigue. It also offers vantage points for people to look at the City & Environment. The installation can also serve various other formal functions such as a gallery, small performance space, a camp and any such public events.
Construction & Materials
The structure is a very simple articulation of column and beam sections. Hollow steel sections are used for the basic structure. The Floor surfaces and external envelope are created by secondary sections and encased by expanded Steel mesh. The installation houses solar panels on the terrace providing shade to the building besides the necessary energy for lighting and conditioning the building.
Climate
The Expanded Steel mesh in form acts like ‘mini’ chajjas and provides for shading from the sun and rain. By virtue of its jali-like porosity, it also conducts the air flowing through it. Depending upon the climate of the place, various strategies like Humidification, Ventilation and Heating & Cooling the Expanded steel mesh will help condition the air. In Hot &/or Humid spaces the Mesh can be cooled or heated by active means.Humidifying the envelope using dripping or misting water in dry regions will help create comfortable conditions too.
Every place is different by virtue of its physical conditions. The Geography determines its Climate, the Climate dictates the Environment, The Environment moulds the Culture, Culture guides Aspirations which leads to Reality. Unfortunately Globalisation is driving Reality today. The value of a Place is losing out to borrowed ideas of alien developments. It is critical that we celebrate our Country as the source of Inspiration & Romance of all Creative forays.
Drawings:
















